(仮称)山形県建設国民健康保険組合会館新築工事



珍しく「KYLYN 建築設計室」に、設計コンペの話しが舞い込んだ。
左官業の方で北村山建設労働組合に入っているのだが、そっちの方からだ。
山形県建設国民健康保険組合会館、要するに建設労働組合の「山形県本部」って事である。

以前、北村山建設労働組合の事務所増築の設計を頼まれて、図面を描いた事がある。
その時の仕事は設計のみで監理は無し、監理は労働組合の組合長さんが監理者って事だった。
設計料のみなので、図面を手間で計算して請求書を出したら、3割引きされたホロ苦い経験がある。

建設労働組合の組合員には、大工さん・工務店・左官屋さん・板金屋さん、様々な人がいる。
一級建築士を持っている人も、一級建築士事務所登録をしている工務店もいるのだが、
北村山建設労働組合の中で、設計コンペに参加したい!と名乗り出る人が誰もいないらしい。
仕方がないので、私が北村山建設労働組合を代表して、設計コンペに参加するしかあるまい・・・

県内各労働組合(14組合)からコンペ案を集めて、その中から選ぶらしい。
だが北村山建設労働組合からは私だけなので、北村山支部での支部審査は無い(笑)。
古巣(三橋設計)の時に、何度か設計コンペの経験はあるが、KYLYN 建築設計室としては初めてだ。
これ迄の経験では、気合いを入れてコンペに参加しても、当選した試しが一度もない。
設計コンペは、at ease(気楽に)参加するのが宜しい・・・



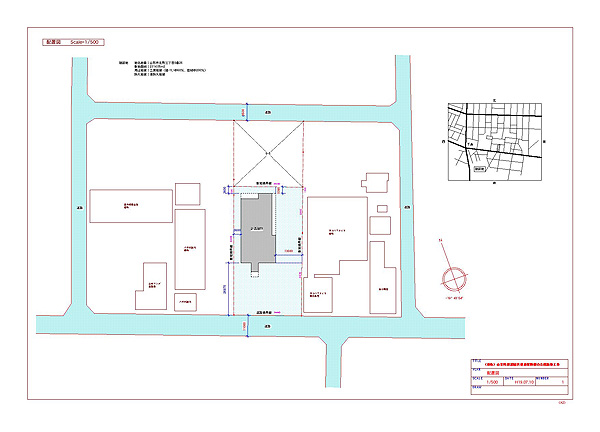
1. 配置図 Scale=1/500(A2)
敷地面積 2314.05m2

※ 単なる建設地だけの配置図でなく、近隣の建物も配置した方が分かり易い。



48KB

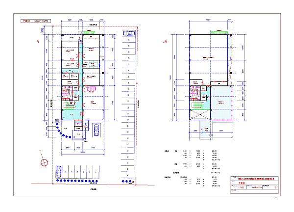
2. 平面図 Scale=1/200(A2)
鉄骨造 2階建 延べ面積 1059.48m2

※ 予算も無いので「遊び」は殆ど無い。平面は単純明快に、質実剛健プランだ。



40KB

3-1. 外観透視図(其の一)

※ 立面図 2面以上(パース可)との事なので、立面図よりパースでしょう。



40KB

3-2. 外観透視図(其の二)

※ 2面以上と言う事なら、やっぱり 4面でしょう。何面でもイイんだけど・・・



40KB

3-3. 外観透視図(実際の出力図)

※ 残念ながら私のプロッターは「モノクロ出力」しか出来ないのです。orz



そして、久々にプロッターで図面を出力・・・、だが素直に図面を出してくれる訳がない。
先ず、プロッターを繋いでいるマック(PM7600)が、なぜかファイル共有をしない。
AFP プロトコルの互換性がどうのと出て、ファイル共有が出来ないのだ。なんで?
原因が未解決のまま、仕方なく USB フラッシュメモリで図面データを渡す。

次に、プロッターのインクが目詰まりしてインクが出ない。これは良くある事だ。
プロッターは出力の機会が少ない(特に私の場合は少ない)ので、インクの目詰まりは毎度の事だ。
インクが詰まったからと言って、その度にインクカートリッジの交換などは出来ない。
何しろプロッターのインクカートリッジは、1個¥3,820(ASKUL)だからね。

詰まったインクカートリッジは、ノズルを掃除して、ガンガン振るとインクが出る様に成る。
振る際はインクが飛び散らない様に、ノズルをティッシュで押えるのが基本です。
インクが詰まってお困りの方は、騙されたと思ってお試しあれ・・・

さて出力された図面だが、文字が指定したフォント(平成角ゴシック)で出て来ない。
単にプロッタードライバの設定である。毎回 1枚目は必ず失敗する。私には学習能力がないのか?
度重なるプロッターの洗礼を受け、まともな図面が出る迄に 2時間ほど掛かった。
ファイル共有は相変わらず出来ないし、まあイイや・・・




4. くるくるアニメ(参考) QuickTime (2.7MB)

※ アニメ提出の要求は無いので、これは単なる私の自己満足です。ハイ。



計画に 1日、配置図に 1日、平面図に 1日、パースに 2日・・・
5日間の仕事で、設計コンペの参加報酬は¥50,000 との事だった。
1日 1万円か・・・、左官仕事の手間にも成りませんなあ。バキッ!/(>_<;)
お小遣い(5万円)を貰って、5日間遊ばせて貰ったと考えましょう。
さ〜て、誰のどんなコンペ案が選ばれるんだろうね?




(仮称)山形県建設国民健康保険組合会館新築工事(2007/07/09) 


 青年の主張に戻る。