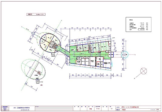
2.平面図 Scale=1/200(A2) 木造平家建(一部地下機械室)延べ面積 712.77m2
3.立面図 Scale=1/200(A2) 光が当る所は明るく、当らない所はそれなりに・・・
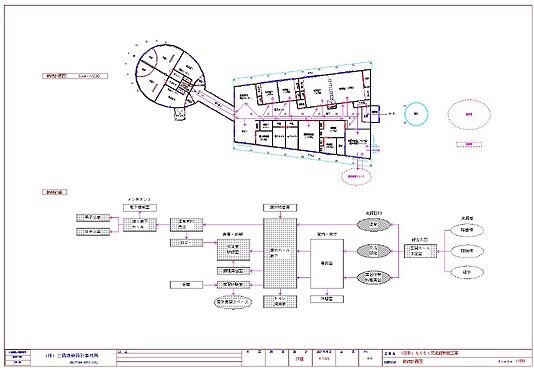
4.動線計画図 Scale=1/200(A2) まあ、こんな感じでいいでしょう。

Orbit Animation (476KB)
(仮称)もくもく交流館新築工事(2002/05/07)