建築概要 配置図・附近見取図 Scale=1/100(A2) 容積率 200%に対し 114.97%、建ぺい率 60%に対し 54.47%です。 別にコレと言った仕掛けも工夫も遊びもありません。 道路斜線、北側斜線、採光と全てにおいて厳しいです。 上の二つは道路側からアイレベル 1.5mで、下の二つは 12mです。 Orbit Animation (736KB)
工事名
伊藤宅増築工事
工事場所
山形県北村山郡大石田町大字大石田 地内
敷地面積
194.61m2
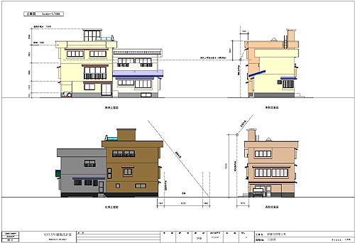
構造・階数
木造 3階建て
床面積
増築部分:1階-57.28m2、2階-58.81m2、3階-57.14m2、R階-2.48m2
既存部分:1階-45.41m2、2階-32.43m2
増築面積:175.71m2、既存面積:77.84m2、合計:253.55m2
建築面積
増築部分:60.59m2、既存部分:45.41m2、合計:106.00m2
最高の高さ
10.98m
最高の軒高
8.42m
用途地域
第一種中高層住居専用地域(容積率:200%、建ぺい率:60%)
防火地域
指定なし
その他
平成 15年 12月完成

全体平面図 Scale=1/100(A2)
立面図 Scale=1/100(A2)
外観透視図
くるくるアニメ
工事概要